Stylish Studio Apartment Plan With Private Garden

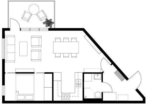
Enjoy indoor/outdoor living in this stylish studio apartment plan with a private garden. The spacious front foyer features a large closet, plus a storage bench for shoes. From there, a lovely arched entranceway leads into the open concept living space, which includes large windows and glass doors overlooking the back terrace. Chefs will be drawn to the light and bright single-wall kitchen with a large island and breakfast bar seating. The drawer fridge is seamlessly integrated into the cabinetry. Enjoy your meals there or on the beautiful outdoor patio. Nearby, a double bed serves as a sofa during the day and for sleeping at night. Other options here include a daybed or pulldown wall bed. The large ¾ bathroom features a vanity sink with storage, a toilet, a walk-in shower, and a washer/dryer unit.

384 sq ft
36 m2
1 Level
1 Bath

This plan can be customized

Edit This Project

Want to edit this floor plan or create your own?

Download App

Similar Floor Plans


More From This Supplier