Geometric Angle 1 Bedroom Floor Plan

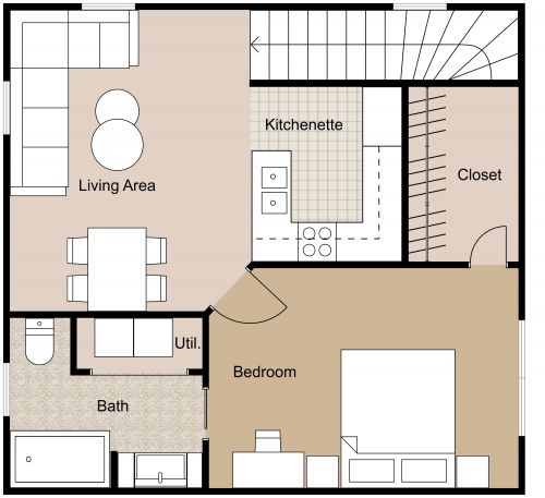
It's possible to convert an irregularly-shaped space into a beautiful and practical home by using a little ingenuity. This geometric angle 1 bedroom floor plan does just that. There's a triangular passageway with storage cupboards and a shoe rack at the entrance. Ahead of that is the bathroom with a shower, a sink, a toilet and a washer. After going through another door, you'll see a dining table with six chairs on the right. Across from this is a kitchen with a U-shaped counter, a refrigerator, a cooking range and a double bowl sink. The dining area flows into the living area which has a loveseat, two armchairs and a coffee table. The bedroom is walled off, with two entrances; it has a double bed and a built-in closet. There's also a small balcony where you can place two lounge chairs and a coffee table

488 sq ft
45 m2
1 Level
1 Bedroom
1 Bath

This plan can be customized

Edit This Project

Want to edit this floor plan or create your own?

Download App

Similar Floor Plans


More From This Supplier