1200 sq ft House Open Floor Plan

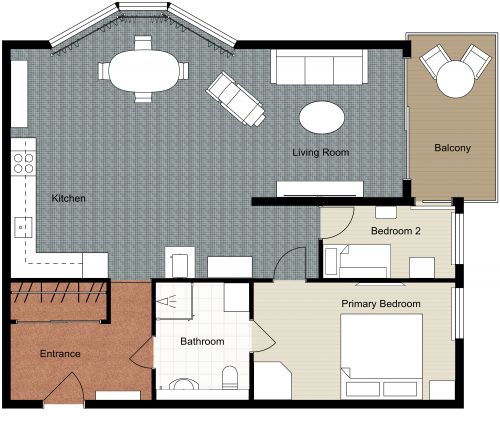
This 1200 sq ft house features an open floor plan that exudes a light and spacious feel, decorated in shades of cream and light brown. The living area includes an L-shaped sofa, an armchair, a coffee table, and a TV, seamlessly flowing into the dining area, which boasts a rectangular dining table and six chairs. This area transitions into the kitchen, equipped with an L-shaped counter, an island with two stools, a double bowl sink, a cooking range, and a refrigerator. Adjacent to the kitchen is a pantry for additional storage and a toilet. The bedroom features a double bed and a closet, while the bathroom includes a shower, a tub, a toilet, and a sink. The floor plan is enhanced by light hardwood floors and pops of blue and maroon, adding a vibrant touch to the overall design.

Made by
Home Designs
1197 sq ft
111 m2
1 Level
1 Bedroom
1 Bath
1 Half Bath

This plan can be customized

Edit This Project

Want to edit this floor plan or create your own?

Download App

Similar Floor Plans


More From This Supplier