Sunnyside Barndominium House Plan

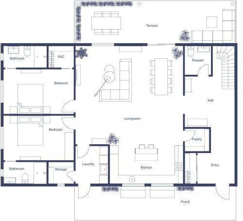
The Sunnyside barndominium house plan is 3063 heated square feet and features 5 bedrooms, 3 full bathrooms, and an attached 969 square foot attached shop. As you enter the Sunnyside barndominium house plan you'll be greeted by an open and airy living area. The living room seamlessly flows into the kitchen, which features plenty of counter space, a convenient island, and a corner pantry. The master bedroom is spacious with an ensuite bathroom and a large master closet. There are 4 secondary bedrooms throughout the home. Each with its own closet ensuring that there is plenty of space for everyone. Bedrooms 2 & 3 share a jack-and-jill bathroom while the other rooms share a convenient hall bathroom. One of the standout features of this property is the craft room and the shop which can be accessed off the main living area of the home. This room has a good-sized closet for storage and organization. The attached shop is large (969 square feet) allowing for plenty of room to work or play. The laundry room is convenient and provides a space to enter the home from the shop. The front porch is the perfect area to sit outside and enjoy everything that nature has to offer.

3897 sq ft
362 m2
1 Level
5 Bedrooms
3 Baths

This plan can be customized

Edit This Project

Want to edit this floor plan or create your own?

Download App

Similar Floor Plans


More From This Supplier