Barndominium House Plan Model 4265 Kayla

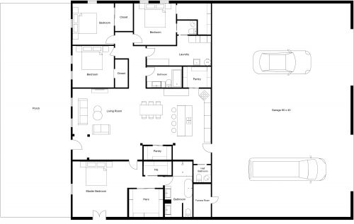
Explore this 2 bedroom, 2.5 bath barndominium house plan model 4265 Kayla from Barndos. This split bedroom home places a large primary suite on one side of the open-concept living area and a second large bedroom on the other side. An L-shaped kitchen with an island is ready for your choice of appliances and layouts and has easy access to the screened porch for outdoor dining. The kitchen’s large walk-in pantry is a coveted feature. Near the back entry, notice the handy mudroom and laundry space. The spacious primary bedroom includes a walk-in closet and large, spa-like ensuite bathroom; enjoy the double sinks, soaking tub, and option for a separate shower. The second bedroom is also large and has access to the lovely screened porch.

Made by
Barndos
1480 sq ft
138 m2
1 Level
2 Bedrooms
2 Baths
1 Half Bath

This plan can be customized

Edit This Project

Want to edit this floor plan or create your own?

Download App

Similar Floor Plans


More From This Supplier