700 sq ft House Plan

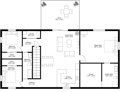
This 700 sq ft house plan showcases a home decorated in neutral tones, such as brown and grey, creating an inviting environment for both work and relaxation. The living room features a warm brown sofa and two armchairs arranged on a light green rug, complemented by an overhead lamp that brightens the space. Adjacent to the living area is a dining area with a rectangular table and six chairs. The kitchen has a U-shaped counter, a refrigerator, a double-bowl sink, a cooking range, and three stools along the peninsula. The bedroom includes a double bed and a closet, while the study offers two workstations, cabinets for books and files, and an additional closet. The bathroom has a shower, twin sinks, and a toilet. The living, dining, and kitchen areas feature warm hardwood flooring, while the bedroom and study are carpeted in grey.

Made by
Home Designs
720 sq ft
67 m2
1 Level
2 Bedrooms
1 Bath

This plan can be customized

Edit This Project

Want to edit this floor plan or create your own?

Download App

Similar Floor Plans


More From This Supplier