12 Examples of Floor Plans With Dimensions
Whether you’re selling a property, offering home improvement services, or planning your new kitchen layout, a floor plan with dimensions is a useful first step you’ll want to take.

Floor plans with dimensions give you an idea of the space available and are incredibly helpful when it comes to visualizing the layout. Allowing you to showcase the spectacular potential of your property or get started on your latest home renovation project.
Why Create Floor Plans With Dimensions?
There are many advantages and reasons why you should include dimensions on your floor plan:
- Property Sales and Marketing: Without actually visiting a property, potential buyers may struggle to visualize what’s on offer. Drafting a detailed floor plan with dimensions and including it in the listing can really help sell a home and highlight key features of the living space. It also comes in handy when selling a property, as buyers often want to know exactly what they’re getting for their money (in terms of square feet).
- Communicating Measurements: Several different people are involved in a construction project and they all need to communicate. Floor plans with dimensions allow the architect or designer to convey precise project details to contractors. Without dimensions, floor plans are ambiguous and open to interpretation.
- Calculate Areas: Whether you’re conducting an energy appraisal, calculating the required airflow of a bathroom extractor fan, or indicating where the furniture will be placed in a newly designed space, working out the area of individual rooms is essential.
- Avoid Costly Mistakes: If you’re ordering new furniture, how can you be sure your comfy new sofa will actually fit in your living room? Or your new dining table and chairs won’t create any unwanted bottlenecks in your dining room? Use a floor plan of course, and plan your furniture layout with pinpoint precision.
- Comply With Legal Requirements: If you’re involved in a significant renovation or building project, chances are you’ll need to request a building permit. Government authorities often require you to submit a floor plan with dimensions.
According to a recent National Association of Realtor’s (NAR) survey, buyers rank floor plans as a very useful website feature. More important than e.g. virtual tours, recently sold properties or even agent contact information. If it’s simple and visual, it matters!
In our experience, a floor plan with dimensions gives an opportunity to understand the layout and space of the house, says Mark Klein from UMoveFree.
We see that floor plans help house-hunters avoid disappointment. I’d recommend everyone add a floor plan with dimensions to the visual property of the listing.
What Is a Floor Plan With Dimensions?
A floor plan (sometimes called a blueprint, top-down layout, or design) is a scale drawing of a home, business, or living space. It’s usually in 2D, viewed from above, and includes accurate wall measurements called dimensions.

You can either order floor plans from a professional (you'll need to have a blueprint or sketch) or you can use floor plan software to create your own.
When it comes to adding dimensions to the floor plan, there are plenty of different options available and each approach has its own pros and cons. Check out the examples below to get an idea of what’s possible:
House Floor Plans
House floor plans cover a large living area and are usually split up into separate drawings for each floor.
If you’re creating your own floor plan, you should start with the first floor and work your way up the building.
You’ll need to consider stairs, outdoor areas, and garages.
1. 2-bedroom home plan with dimensions
One way to include dimensions in your floor plan is by labeling around the whole building, as shown here:

Moving the measurements to the side can make the plan easier to see and appear less cluttered.
2. 3-bedroom home plan with room labels
Alternatively, you can add labels to the center of each room. The dimensions can be displayed below each label like in this example:

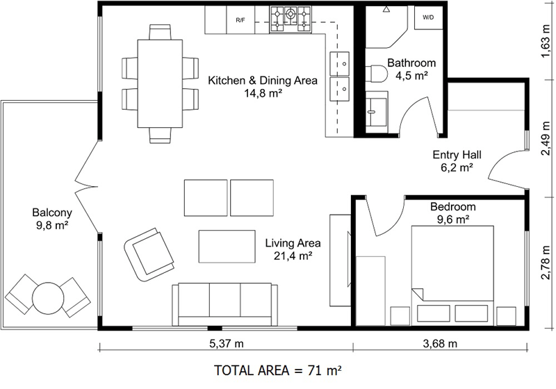
3. 2-bedroom branded floor plan with area labels
There are no rules that say you must stick to black and white! This beautifully branded floor plan uses a shade of blue to match the company logo:

Instead of showing individual dimensions, this floor plan simply displays each room’s area (in square feet)
This cuts down on clutter and makes the plan look cleaner. But doesn’t include wall measurements, making it more suitable for marketing purposes where absolute precision isn’t required.
4. 1-bedroom house floor plan with total area
This example shows how both areas and dimensions can be used on the same plan:

5. Combined 2D-floor plan with legend
Here, the designer has used a legend to separate the labels from the drawing:

This marketing-oriented floor plan includes shading and color to make certain living spaces appear more distinctive.
Apartment Floor Plans
Apartment plans are often on one level, so the layouts are easier to draw. But you still have to consider balconies or outdoor spaces.
You may also indicate the dimensions of the access to the apartment. Furniture deliveries can be restricted by a narrow staircase or elevator and you might want to indicate this on your plan.
6. 4-bedroom apartment floor plan with dimensions and shading
This floor plan uses shading to distinguish between the different types of living space within the apartment:

7. 3D studio apartment floor plan
This stunning 3D floor plan helps you to better visualize the living space:

The use of colors, shading, and perspective makes the design jump out. You can imagine yourself living there, making this type of floor plan ideal for sales and marketing.
A couple of key dimensions have been included to give a sense of size without distracting too much from the aesthetics.
8. Furniture floor plan
Whether you’re an interior designer working for a client or just fancy a change of scenery, furniture floor plans with dimensions can help you work through the possible options in terms of furniture placement:

By Including dimensions on your floor plan, you can quickly see how big of a sofa you can fit in your living room or if there’s enough space for a computer workstation.
Kitchen Floor Plans
If you’re upgrading your dated kitchen and want to explore the exciting possibilities, a kitchen floor plan is a great place to start.
You’ll need to think about where to position large kitchen appliances like your oven, stovetop, fridge, and dishwasher. Workflow in a kitchen is essential. Detailed dimensions are important to ensure you create a practical kitchen layout that provides easy access to everything you need.
9. Combo kitchen floor plan with dimensions
This example gives you the best of both worlds with detailed dimensions and a beautiful 3D visualization. By combining 2D and 3D plans like this, it makes it easy for the contractor to deliver the exact installation you want:

10. Kitchen floor plan with appliance labels
This floor plan contains both appliance labels and zone names. Including every last detail on your floor plan leaves nothing to chance and ensures your newly designed kitchen provides an optimal workflow environment.
It also ensures nothing is overlooked and there’s assigned space for everything you need:

Bathroom Floor Plans
There are three key components to any bathroom, a toilet, sink, and shower/bath unit. As each component needs to be plumbed into a water supply and drainage system, you’ll need to decide on their position well in advance.
This is where a bathroom floor plan comes in. It’ll help you avoid expensive plumbing mistakes and ensure your project runs smoothly.
11. Compact bathroom floor plan with dimensions
This 2D example of an en-suite bathroom includes dimensions and feature labels together with a door arc representation (for an idea of available space):

The 3D version brings the plan to life:

12. Bathroom floor plan with alternative design
This plan leaves out dimensions to focus on alternative design options:

The bath design and sink positioning vary between each layout. This demonstrates how creating a bathroom floor plan allows you to quickly look at alternative options to pick the best solution.
Meters vs. Feet
At RoomSketcher, we have users all over the globe. And with different regions come different systems of measurements—most prominently meters vs. feet. And if you’re one of our professional users with foreign clients, you may need to convert your design from one unit of measurement to another.
So how do you convert from one system to the other? Check out this short Help article to find out!
Introducing Our Measurement Wizard
While it would be nice if every home or property was a simple, easy-to-measure square, in reality, that’s just not the case. Many home perimeters are filled with ins and outs, nooks and crannies, and otherwise difficult-to-measure dimensions.
Fortunately, we thought of that too, which is why we’ve created a measurement wizard to help you quickly and accurately determine the total length and width of your property—and how much space each individual segment might take up. So how do you do it? Let’s take a look:
The measurement wizard is only available to our paying subscribers. If you’re not a paying subscriber yet, no sweat! It’s easy to upgrade.
Configure Your Measurements
Of course, any provider knows that the inside measurements and outside measurements are going to differ. While the lengths of outside walls are going to give you a good idea of your overall dimensions, the lengths of the internal walls will help you determine your actual usable space.
Your client preferences will also likely differ – some clients require higher precision than others. To address this issue, you can configure your floor plan measurement settings.
Calculate Total Area
Ultimately, the magic of home design is creating real, livable spaces for people. While having an idea of the inside measurements of each wall will give you a sense of the room size, we’re sure you’ll agree that having a clear display of the actual total area can be very convenient. Here’s how it’s done:
Create Your Own Floor Plan in Minutes
While creating a floor plan by hand is feasible, it can be time-consuming. Especially if you need to update and adjust your drawing later on.
You’ll achieve a much more precise and professional result if you use specially designed floor planning software.
And even if you’re paying a professional to create a floor plan for you, it’s still really helpful to provide them with a detailed first draft.
This is where the RoomSketcher App comes in. This easy-to-use tool allows you to effortlessly create, update, and edit great-looking floor plans with dimensions. And it’s completely free to get started!
Don't forget to share this post!
Recommended Reads

The 8 Best Floor Plan Software Tools for 2025
The market is flooded with floor plan software options, each promising to make your processes easier and more efficient. We've put the top tools to the test!

Floor Plan Symbols and Abbreviations
A good understanding of symbols and abbreviations will improve your ability to read floor plans. This guide covers the most common symbols and letters that you may come across.

How to Read Floor Plans: 9 Easy Steps
Learn how to read floor plans with our easy-to-follow guide. We'll walk you through interpreting measurements, analyzing layouts, and making sense of symbols step by step.