3 Bedroom Handicap Accessible Floor Plan

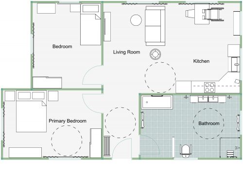
Every day will feel like a vacation in this 3 bedroom handicap accessible floor plan. Through the front door, you'll enter the spacious open-concept living space. The living room flows seamlessly into the dining area and the kitchen. The kitchen features plenty of counter space, including a center island and a connected butler's pantry. Two bedrooms lie on one side of the floor plan, each with its own large closet, carpet flooring, and access to a wheelchair accessible bathroom located between them. The primary suite is on the other side of the floor plan, complete with a walk-in closet and eye-catching tiles in the bathroom. Beautiful hardwood flooring adorns the primary bedroom, butler's pantry, and main living spaces. The star of the home is a large patio with ample space for dining sets, an outdoor umbrella, and a relaxing spa.

1765 sq ft
164 m2
1 Level

This plan can be customized

Edit This Project

Want to edit this floor plan or create your own?

Download App

Similar Floor Plans


More From This Supplier