ADA Home Floor Plan

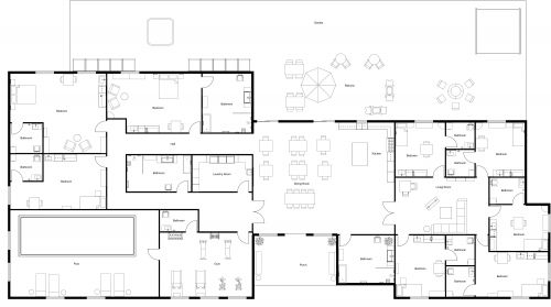
Each room in this ADA-compliant home floor plan is decorated with ADA requirements in mind. There’s plenty of space for a wheelchair to maneuver in the bedrooms, bathrooms, and living room. The living room features a couch, one armchair, and one wheelchair in navy blue, which contrasts beautifully with the blonde hardwood floors. The dining area includes a rectangular table with room for wheelchairs. The kitchen has an L-shaped counter, a refrigerator, a cooking range, and a sink. The bedrooms all have double beds and en suite bathrooms. Each bathroom includes a shower, a sink, and a toilet with safety rails. There’s also an extra toilet accessible from the living area. Overall, this ADA home floor plan has an active, spacious feel.

1283 sq ft
119 m2
1 Level

This plan can be customized

Edit This Project

Want to edit this floor plan or create your own?

Download App

Similar Floor Plans


More From This Supplier