Senior Living Floor Plan

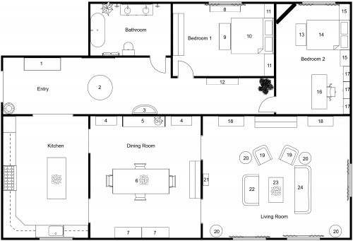
If you are looking for a senior living floor plan that meets every need, you have found it. The size and layout of the attractive living/dining/kitchen area provide comfort, peace of mind, and ease of movement. The spacious sitting area has ample room, and the open-plan concept flows smoothly into the dining area. The window design allows for plenty of natural light. The kitchen features ample worktops and high-quality appliances. The large bedroom also offers generous space and abundant natural light. Next to the bedroom is a separate den, reading room, study, or guest bedroom, which adds to the convenience of your new home. The spacious bathroom is designed to accommodate wheelchair or walker use, and the large walk-in shower area enhances the convenience of your daily routine. Outside, a large deck area is perfect for relaxing quietly or entertaining guests.

836 sq ft
78 m2
1 Level

This plan can be customized

Edit This Project

Want to edit this floor plan or create your own?

Download App

Similar Floor Plans


More From This Supplier