Office Floor Plan 23x20

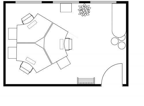
The best way to create a relaxing environment to work in is by decorating your office space in natural shades. This office floor plan 23x20 has light brown hardwood floors, walls painted a medium green color, a green rug and several plants scattered around the room, all of which creates the impression that you're working in the middle of nature. There's a long sideboard set against one wall and a white, asymmetrical desk placed diagonally, facing the door. There's a rolling chair for the person working in the office and two chairs across from it, for visitors. In one corner of the office is a small nook with two more chairs and a table in-between. This is great for informal chats with visitors, over a cup of coffee. Three windows let in natural light, and small pieces of artwork on the walls make the place more welcoming.

Made by
Office Layouts
460 sq ft
43 m2
1 Level

This plan can be customized

Edit This Project

Want to edit this floor plan or create your own?

Download App

Similar Floor Plans


More From This Supplier