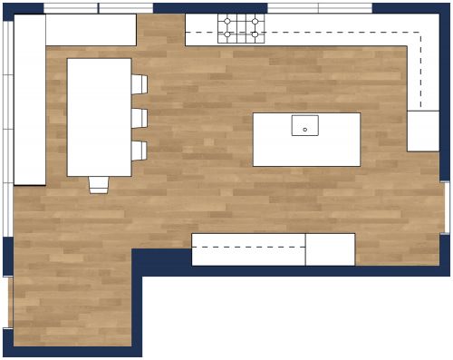
Stylish L-Shaped Kitchen With Island

This stylish L-shaped kitchen with island has ample storage capacity at the base of the kitchen island. Both the island's front and sides are cabinet spaces. It has a tiny nook or overhang where you can tuck counter seats when not in use. This design's kitchen island maximizes the extra workspace, dining area, and storage it offers. The marble top of the kitchen island has an overhang on all sides, allowing for dining on any of them. It also employs additional cabinets for extra space to cover the entire base on all sides

Made by
Kitchen Designs
531 sq ft
49 m2
1 Level

This plan can be customized

Edit This Project

Want to edit this floor plan or create your own?

Download App

Similar Floor Plans


More From This Supplier