Kitchen Design With Peninsula

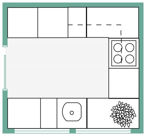
When it comes to designing a kitchen that feels open and inviting, less is usually more. That's certainly the case with this modern minimalist kitchen design with peninsula. Its clean lines, bright white cabinetry, and sleek black appliances make for an understated yet stylish vibe that you'll be proud to call your own. In addition to its generous storage space, this kitchen offers plenty of counter space, perfect for convenient everyday cooking and entertaining. Two windows sit adjacent to the kitchen area, which make the space feel big, bright, and welcoming. A breakfast nook, a window seat, or a small dining set would fit beautifully in the open area located on the other side of the large peninsula. The light wood flooring adds a homey touch that pulls the entire room together. If you're looking for an attractive yet no-fuss, contemporary kitchen design, you can't go wrong with this one.

Made by
Kitchen Designs
202 sq ft
19 m2
1 Level

This plan can be customized

Edit This Project

Want to edit this floor plan or create your own?

Download App

Similar Floor Plans


More From This Supplier