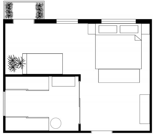
Bedroom With Walk-in Closet

This room design features a luxurious black and gray theme. A comfy brown bedroom seat in the corner stands out against the black and gray theme. Next to the seat is a chest of drawers for storage with space for plant and candle décor at the top. The room has three narrow awning windows that direct light across the room. An elegant chandelier and sleek wall sconces complement the natural lighting. Besides, the king-size bed is two nightstands of different sizes for extra storage. The room has a spacious walk-in closet with a His and Hers dressing section, two lower storage cabinets, hanging lines, and a dressing bench. It also has a full-sized dressing mirror that reflects light, seemingly extending the space. The toilet is spacious and features a toilet sink and a toilet bowl, and a toilet window.

267 sq ft
25 m2
1 Level

This plan can be customized

Edit This Project

Want to edit this floor plan or create your own?

Download App

Similar Floor Plans


More From This Supplier