Home Landscape Design

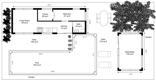
Designed with effortless charm in mind, this home landscape design exudes relaxation and comfort. Complete with two stories, there's ample space for your family to spread out. The first floor features an open floor-plan living room that flows into the spacious dining area. The kitchen is in a separate room and includes room for a small breakfast table set. A half bathroom lies near the spiral oak staircase. The second floor is just as comfortable as the first with its large Master bedroom and additional spare bedroom, perfect for a child or overnight guest. A small balcony is attached to the Master bedroom. Two walk-in closets provide plenty of storage space. A bright full bathroom can be accessed from the upstairs hallway, complete with a modern glass shower and oval soaking tub. The home also includes outdoor storage, a two-car garage, and a large grassy area with eye-catching greenery.

3533 sq ft
328 m2
2 Levels

This plan can be customized

Edit This Project

Want to edit this floor plan or create your own?

Download App

Similar Floor Plans


More From This Supplier