5 Great Ideas for Small Office Floor Plans
Your office does not have to be big to be a perfect place in which to work. If you arrange the items in the room wisely, you can maximize the space you have. By creating a small office floor plan, you can try out various furniture arrangements prior to actually moving or making any purchases. Plus, you can pre-visualize your design so that you create a place in which you’ll truly enjoy spending time.

Here are 5 great small office floor plans for your inspiration, all in rooms that are 11’x10’ or less! Let’s take a look.
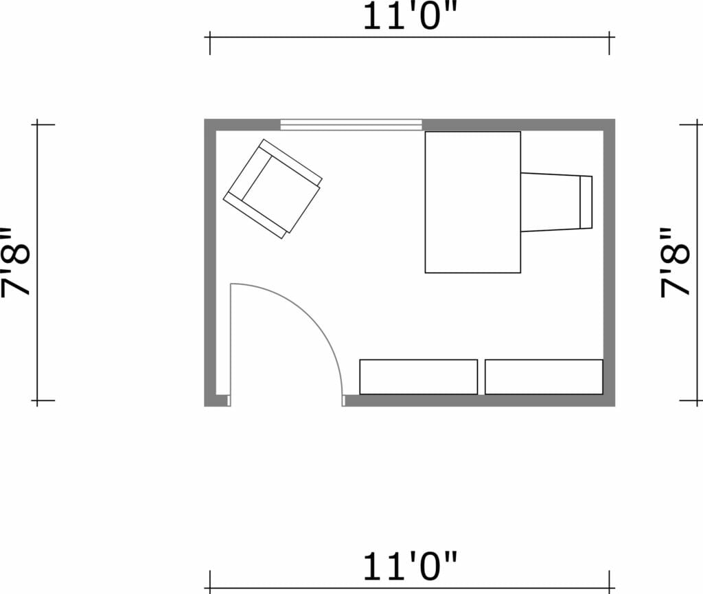
1. Power Position
In this plan, the desk is located in the corner opposite the door and placed so that you are facing the door. With the desk in this position, you have a comfortable view of anyone coming into your office.

In Feng Shui, this type of layout is called the Command Position and is said to give you the best ability to address anything that may come through the door. This small office floor plan also includes two file cabinets with hutches, to maximize your storage. Finally, we’ve included a comfortable place near a window (for plenty of natural light) to read.
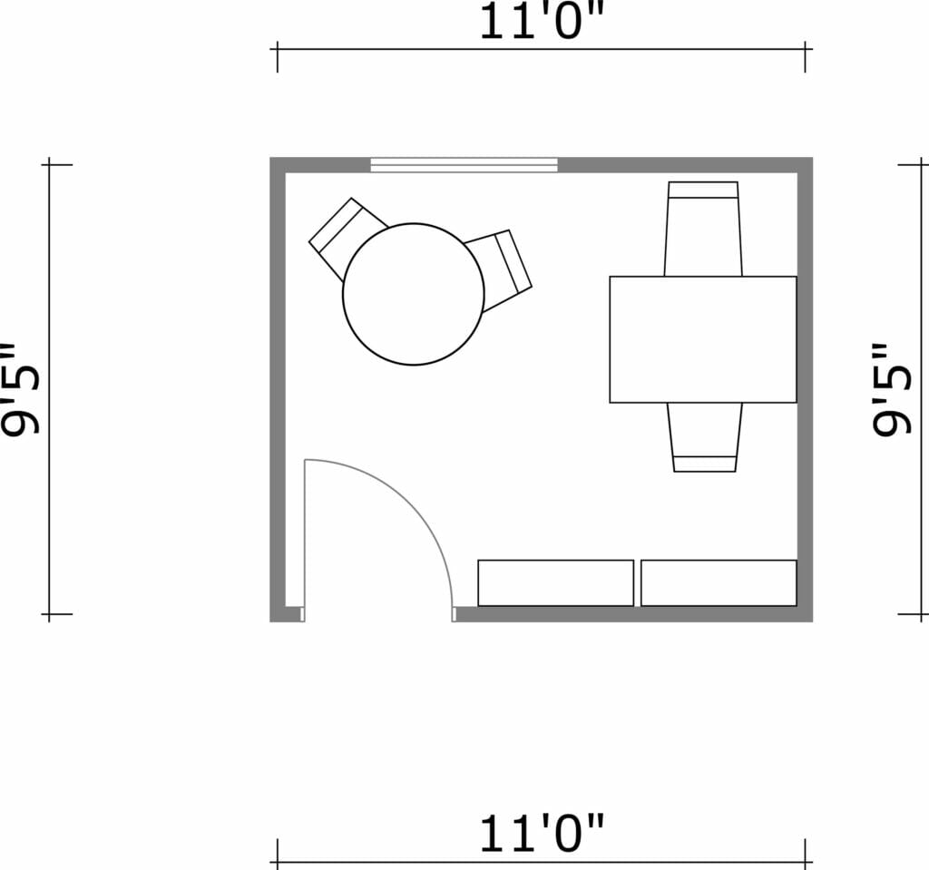
2. Client-Focused: Option 1
If you regularly host clients or co-workers, it’s important that your small office floor plan also supports their needs and provides a comfortable and welcoming space. This floor plan allows you to sit across from clients at your desk, for face-to-face discussions. It also provides a table and chairs if you need to sit side-by-side to review documents.

This plan also provides flexibility if you are meeting with more than one client – the extra chairs at the table can be moved so that more people can sit at the desk. Alternatively, the client chair at the desk can be moved to the table for a three-person conference.
Here is a sample image, as well as a 3D Floor Plan, showing a bright, modern color scheme and furniture for this office:
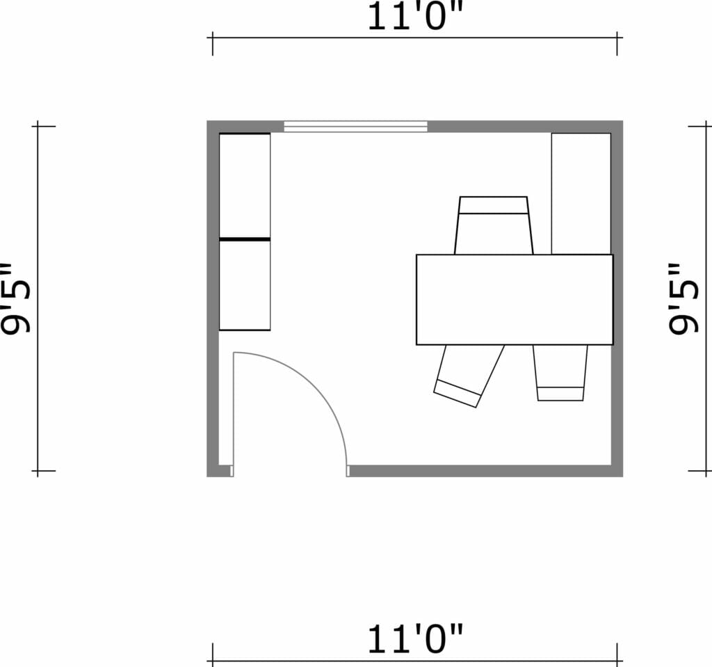
3. Client-focused: Option 2
If you need more workspace for your tasks or more storage, this next small office floor plan provides larger filing cabinets as well as a desk hutch and return. The floor plan still easily accommodates two clients or visitors with ease.

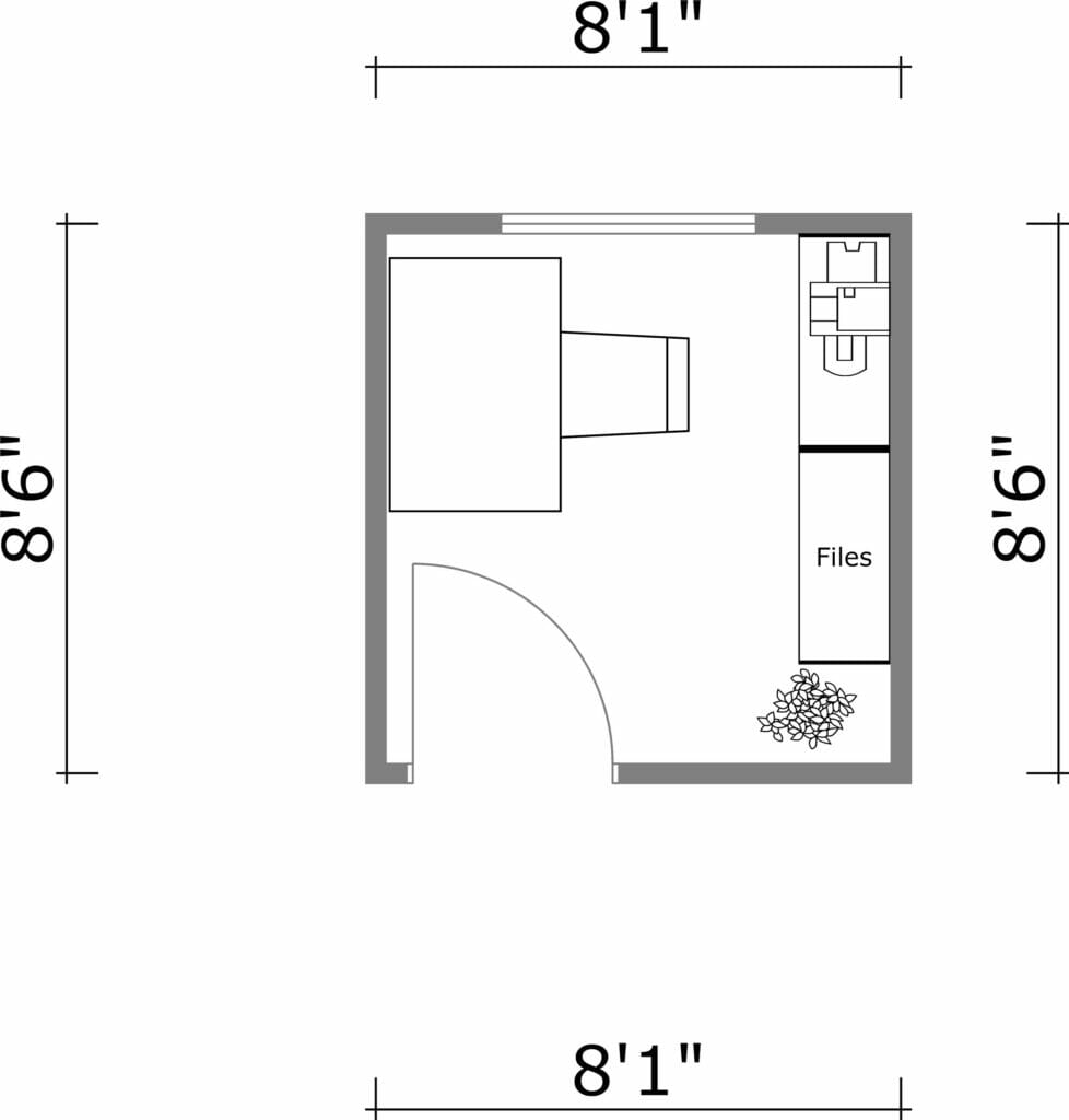
4. Efficient Triangle Design
Does your business require a good amount of printing and filing? Just like a kitchen, your office will be more functional if you can keep everything in a triangular pattern. This allows for easy reach, good flow, and efficiency. For example, place your desk in one corner of the triangle, a filing cabinet in another corner and your printer in the third corner, as shown in this small office floor plan:

5. Room for Two
Do you need to share a room with a partner? Here is a small office floor plan to maximize your space. This floor plan places each person facing away from each other, to minimize distractions. It also provides plenty of storage in the form of a file cabinet at each desk as well as shelves above each work area. Finally, this small office floor plan includes two comfortable chairs for reading and takes advantage of the natural light from several large windows.

Here is a photo of one possible color scheme, a calm, natural and organic look, for this office:

How to Create a Small Office Floor Plan
The best strategy to create a small office floor plan is to plan ahead. You can use a software tool such as the RoomSketcher App to quickly sketch out the floor plan for the area you intend to use for your office. Measure the dimensions of the space, including doors and windows, and drag-and-drop to size walls and add windows and doors onto the plan. Finally, drag-and-drop furniture and move it around until you’ve found your perfect small office floor plan.
Don't forget to share this post!
Recommended Reads

Space and Circulation in Your Office Layout
As you plan your new office layout, it’s important to think through the space required around each item of furniture.

Plan Your Office Design With RoomSketcher
Plan and visualize your office design online and in 3D! Create layouts, floor plans, 3D images, source furniture and more with RoomSketcher.

7 Top Office Design Trends Worth Trying
Curious about the latest office design trends? In this article we’ll show you the top trends, why they’re important and how to use them in your workplace.