Tiny House Floor Plan With Bedroom Loft

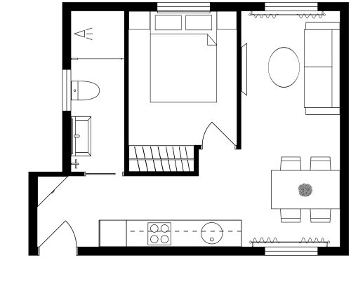
This tiny house floor plan with bedroom loft delivers a minimal footprint by lofting the bedroom over the kitchen. You’ll enter the unit into a combined living and dining area. Thoughtful design elements include the large built-in tall closet and low bench unit which does double duty as display space, storage, and seating. The convenient full bathroom offers 2 sinks, a toilet, and a bathtub or bath/shower combination. The L-shaped kitchen features a full refrigerator, sink, range, and open shelf storage - add optional wall cabinets if you wish. Additional storage is cleverly hidden under the loft stair system. The loft sleeps 2 in a queen or double size bed with side tables tucked on one or both sides. Additional basket storage is located under the combined shelf unit and loft railing.

Made by
Anja Kodrič
386 sq ft
36 m2
1 Level
1 Bedroom
1 Bath

This plan can be customized

Edit This Project

Want to edit this floor plan or create your own?

Download App

Similar Floor Plans


More From This Supplier