400 sq ft ADU Floor Plan

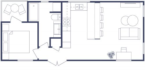
A 400 sq. ft. ADU floor plan designed like this one delivers the results you seek in an auxiliary dwelling unit. Many families want extra living space for guests and family members or to generate additional income when used as a rental. The clever design is compact and functional. The living room area merges seamlessly into the kitchen area. The kitchen offers ample cabinet space and countertops, one side of which doubles as a great breakfast bar. The single bedroom is spacious and includes a large closet. The bathroom features a huge washbasin and an easy-access shower cubicle suitable for the needs of an elderly resident. Off the bathroom, you'll find a utility room with space for a washer and dryer.

Made by
Home Designs
400 sq ft
37 m2
1 Level
1 Bedroom
1 Bath

This plan can be customized

Edit This Project

Want to edit this floor plan or create your own?

Download App

Similar Floor Plans


More From This Supplier