2400 sq ft House Plan

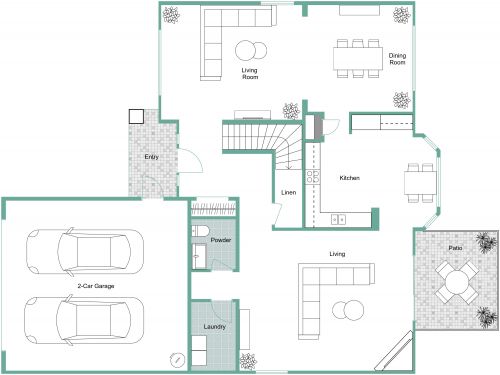
This 2400 sq ft house plan exudes a cheerful, homey feel, decorated in shades of deep yellow, white, and grey. On the ground floor, you'll find an L-shaped kitchen equipped with a double-bowl sink, cooking range, and refrigerator, which flows into the dining area featuring a table and six chairs upholstered in a yellow, grey, and white print. The living area is furnished with a deep yellow sofa and loveseat, creating a warm atmosphere. There are three bedrooms, each with double beds and en suite bathrooms. An additional dining table with four chairs on the outdoor porch offers a lovely space for meals with friends on sunny days. On the first floor, there is a living room with a sofa and an armchair, a storage room, three more bedrooms with double beds, two toilets, a study with two workstations, and an outdoor seating area.

Made by
Home Designs
2413 sq ft
224 m2
2 Levels
7 Bedrooms
3 Baths

This plan can be customized

Edit This Project

Want to edit this floor plan or create your own?

Download App

Similar Floor Plans


More From This Supplier