Interesting 2 Story House Plan

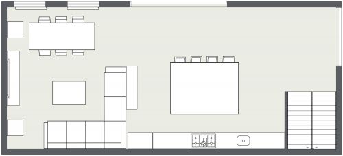
With primary bedrooms on both the ground floor and upstairs, this interesting 2 story house plan provides lots of flexibility. Enjoy the user-friendly features in the grand entrance foyer, from a seat to assist in removing shoes to a powder bath and storage options. High-end double doors lead to a formal living room and reading nook. The spacious u-shaped kitchen features a large island/breakfast bar plus a custom dining banquette that seats 8. A nearby office nook is perfect for completing work from home. The 2 car garage provides a convenient entrance to the house via a large utility/laundry room complete with a washer/dryer, utility sink, and storage closet. Completing the downstairs layout, an oversized primary bedroom suite features a large walk-in closet and ensuite bathroom. Upstairs, furnish the generous loft space as a family room, playroom, or gym. The primary bedroom suite on this floor also features a walk-in closet and spa-like bathroom. Nearby, 2 secondary bedrooms share a full bathroom.

Made by
Marsh & Co
4613 sq ft
429 m2
2 Levels
4 Bedrooms
3 Baths

This plan can be customized

Edit This Project

Want to edit this floor plan or create your own?

Download App

Similar Floor Plans


More From This Supplier