Floor Plan 2 Bedroom Tiny House Interior

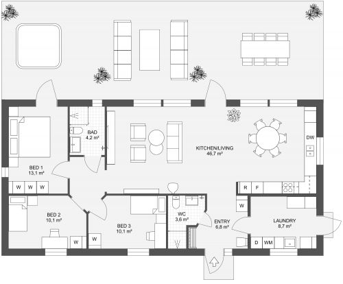
This floor plan for a 2 bedroom tiny house includes a large entrance deck to enhance indoor/outdoor living. You’ll find a comfortable open kitchen and living room as you enter the unit through the sliding glass door. The L-shaped kitchen includes a refrigerator, sink, stove, and upper storage cabinets. While we’ve shown outdoor dining on the plan, you have options; for example, remove a love seat and add a small bistro table to the kitchen area if desired. Each bedroom is currently shown with a double or queen bed; one bedroom could be set up with bunk beds or a desk instead. Each bathroom contains a shower, toilet, and sink. The larger bathroom also includes space for a convenient clothes washer and dryer.

Made by
Home Designs
431 sq ft
40 m2
1 Level
2 Bedrooms
2 Baths

This plan can be customized

Edit This Project

Want to edit this floor plan or create your own?

Download App

Similar Floor Plans


More From This Supplier