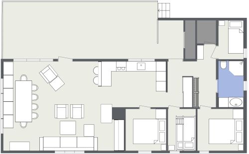
30x30 Floor Plan

Simple charm reigns supreme in this 2-bathroom, 1.5-bathroom, 30x30 floor plan home. Double doors lead into the connected living room and dining area. Contemporary wood floors, light gray walls, and two windows make the multipurpose space bright and inviting. The open-concept living space seamlessly flows into the kitchen, with wrap-around granite counters and teal cabinets. The two bedrooms can be found in the back corners of the floor plan: the primary bedroom to the left with a private bathroom and the spare bedroom to the right with enough space for two twin beds. An additional half-bathroom between the bedrooms features a toilet, sink, and small window. Varying shades of grays, blues, and creams give this home a modern, homey vibe.

Made by
Home Designs
835 sq ft
78 m2
1 Level
2 Bedrooms
2 Baths

This plan can be customized

Edit This Project

Want to edit this floor plan or create your own?

Download App

Similar Floor Plans


More From This Supplier