40x30 House Plan

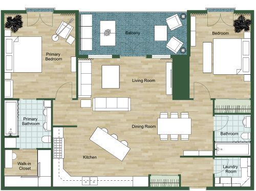
Explore this 40x30 house plan that has it all! Its clever design makes it ideal for a family, housemates, or a live-in caregiver. You’ll enjoy a good traffic flow that makes moving around easy, with enough space for togetherness or privacy. The large front porch leads directly to the great room and also to the good-sized utility room, providing a place to take off muddy boots before entering the home. The great room features a spacious living and dining area, along with a separate space for relaxing or working. The kitchen is located to the left of the great room and offers ample workspace and cabinetry, making food prep easy. It is also large enough for a small breakfast table if desired. Each bedroom is spacious and includes an en suite bathroom with a large corner shower stall. Together, you get it all in this cleverly designed home.

Made by
Home Designs
888 sq ft
82 m2
1 Level
2 Bedrooms
2 Baths

This plan can be customized

Edit This Project

Want to edit this floor plan or create your own?

Download App

Similar Floor Plans


More From This Supplier