Full Master Bathroom Zen Style Décor

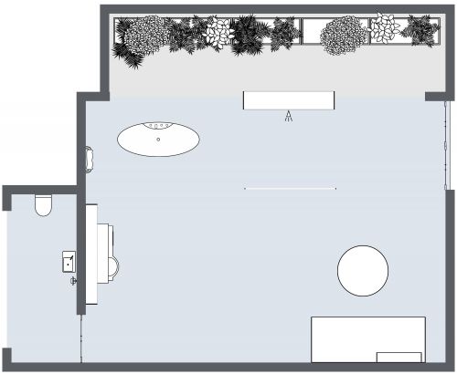
Commune with nature in this full primary bathroom with Zen-style décor. The floor plan features a swing door opening into a spacious open-plan room. Straight ahead, a large soaking tub sits in front of sliding glass doors opening to a garden patio and outdoor shower. On the right side of the room, notice the dual vanity sink and indoor shower. A semi-private toilet nook sits on the left side of the layout. Wood décor elements, a key feature of Zen style, are found in the vanity sink, flooring around the tub, and wood accent wall behind the toilet. The beige, white and brown color scheme, with pastel pink accents, provides a calm, Zen-like feel. Touches of nature abound with the plants and flowers inside the bathroom, plus the lovely garden plantings in the outdoor shower area. A large pink ottoman, soft pink towels, and candles bring spa-like luxury to this gorgeous bathroom.

Made by
Andrea Platzer
172 sq ft
16 m2
1 Level

This plan can be customized

Edit This Project

Want to edit this floor plan or create your own?

Download App

Similar Floor Plans


More From This Supplier