Large Transitional Master Bathroom Design

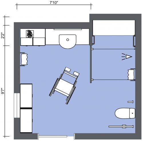
This large transitional primary bathroom design inspires ways to lay out an irregularly shaped room. The full bathroom floor plan features a swing door into a large open space with a double vanity, a walk-in shower, a standalone tub next to a curved wall, and a private toilet room. The transitional style is a mixture of traditional and modern. The vanity, with its more traditional curved fixtures and shaker cabinets, combined with the modern, clean lines of the countertop and sinks, is a hallmark of transitional style. The freestanding clawfoot tub brings a traditional vibe, while the curved wall behind it brings a more modern feel. Large format floor tiles are iconic of transitional style, as is the relaxed color palette of white, pink, and light purple. Sleek vanity lighting combined with more traditional chandeliers complete the transitional décor.

Made by
Andrea Platzer
228 sq ft
21 m2
1 Level

This plan can be customized

Edit This Project

Want to edit this floor plan or create your own?

Download App

Similar Floor Plans


More From This Supplier