Bathroom Floor Plan

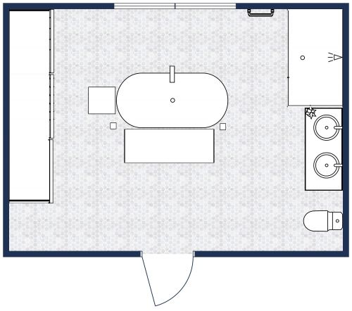
There's a grand feeling in the marble flooring and the chandelier of this bathroom floor plan. You can almost imagine that you're in a bathroom from the 19th century when you set foot in this bathroom. Although the ambience has a retro feel, the fixtures are all modern. There's a white, sculptural bathtub overlooking a window, twin sinks, a small bench to sit on, a tall cupboard to store towels and soaps, and a cabinet for more storage. There's also a separate, semicircular section where you can take a shower and a small alcove with a toilet. This floor plan also has a number of circular and semicircular patterns which give it an elegant look. Overall, you can think of this bathroom as a secret getaway which will give you an escape from your daily life.

221 sq ft
20 m2
1 Level

This plan can be customized

Edit This Project

Want to edit this floor plan or create your own?

Download App

Similar Floor Plans


More From This Supplier