Villa Balans 156

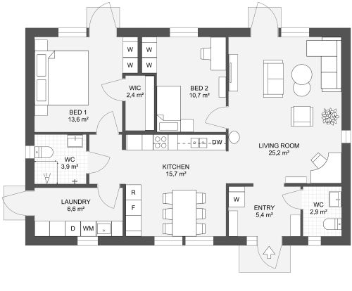
The Villa Balans 156 showcases another open living space and split bedroom layout to consider. A front porch leads into a convenient entry foyer complete with a compact closet, customizable laundry room, and handy ¾ bathroom. The lovely open living space, with tall sloped ceilings, has a cozy fireplace and large windows to view the front and back yards. The great room’s single wall kitchen offers a full-size refrigerator, range, sink, dishwasher, and upper storage cabinets; the large kitchen island provides extra prep space and the perfect spot for guests to hang out and converse with the cook. The primary bedroom suite on the left of the floor plan offers a glass door to a back patio and a huge walk-in closet. On the right side of the floor plan, set up the family room as a teen room, kids playroom, den, or office/study area. Nearby, you’ll find a ¾ bathroom and two secondary bedrooms.

Made by
Bra Hus
1685 sq ft
156 m2
1 Level
3 Bedrooms
2 Baths

This plan can be customized

Edit This Project

Want to edit this floor plan or create your own?

Download App

Similar Floor Plans


More From This Supplier