3 Bedroom Barndominium Interior

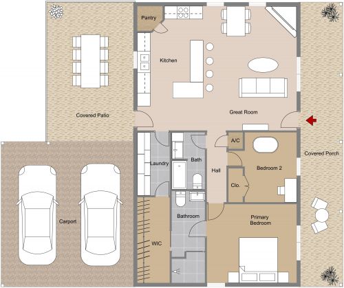
What's not to love about this three bedroom barndominium interior layout that is handsome, modern, and edgy? The kitchen features rich brown cabinets, cream granite countertops, and sleek black appliances that pop against the room's bright white walls and light wood flooring. The adjoining living room is separated by the contemporary dining area and feels distinct with its warm, taupe walls and eclectic furnishings. The roomy master bedroom is connected to a large master bathroom and walk-in closet while the two spare bedrooms can comfortably hold a single bed, a small dresser, and a side table. Each of the bathrooms includes dark gray tile flooring and crisp white appliances. A spacious laundry area leads out onto one of the home's two porch areas, one of which includes a jacuzzi and that both enhance its style, functionality, and comfort.

1627 sq ft
151 m2
1 Level
3 Bedrooms
2 Baths

This plan can be customized

Edit This Project

Want to edit this floor plan or create your own?

Download App

Similar Floor Plans


More From This Supplier